
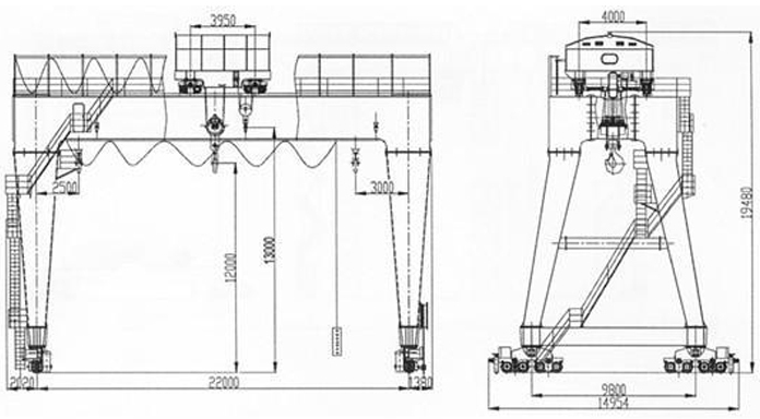
Тежки лифт Крейн, двоен лъч козлови кран 30 тона
Двойна светлини козлови кран с куки се прилага извън склада или железопътни настрани да направи общи повдигане и разтоварване творби. Този вид кран се състои от мост, подкрепящи краката, Крейн пътуваща орган, количка със силни повдигане лебедка, електрическо оборудване и система за контрол. Като си тежкотоварни дизайн той може да бъде широко използван във всички видове на промишлената област.
тежки Асансьор Крейн, двойно греда козлови кран 30 тон
Двойна светлини козлови кран с куки се прилага извън склада или железопътни настрани да направи общи повдигане и разтоварване творби. Този вид кран се състои от мост, подкрепящи краката, Крейн пътуваща орган, количка със силни повдигане лебедка, електрическо оборудване и система за контрол. Като си тежкотоварни дизайн той може да бъде широко използван във всички видове на промишлената област.